CN
EN
首页
关于我们
产品中心
- 汽车板
- 工控/主板
- 通讯/安防
- 高频高速
- LED灯板&电视背光
可持续发展
- 环保信息
- 品质保证
- 工艺流程
- 制程能力
联系我们
环保信息
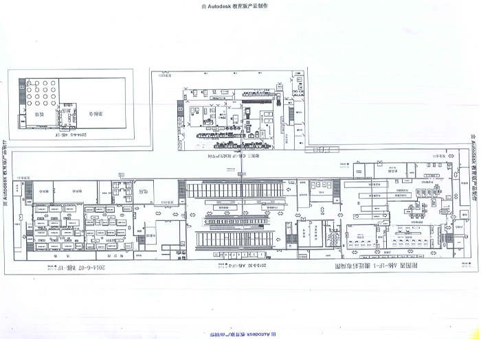
厂区平面图
发布时间:2019-07-03 编辑:明正宏
上一篇:没有了
下一篇:
废气处理工艺
首页
简介
产品
邮箱
热线